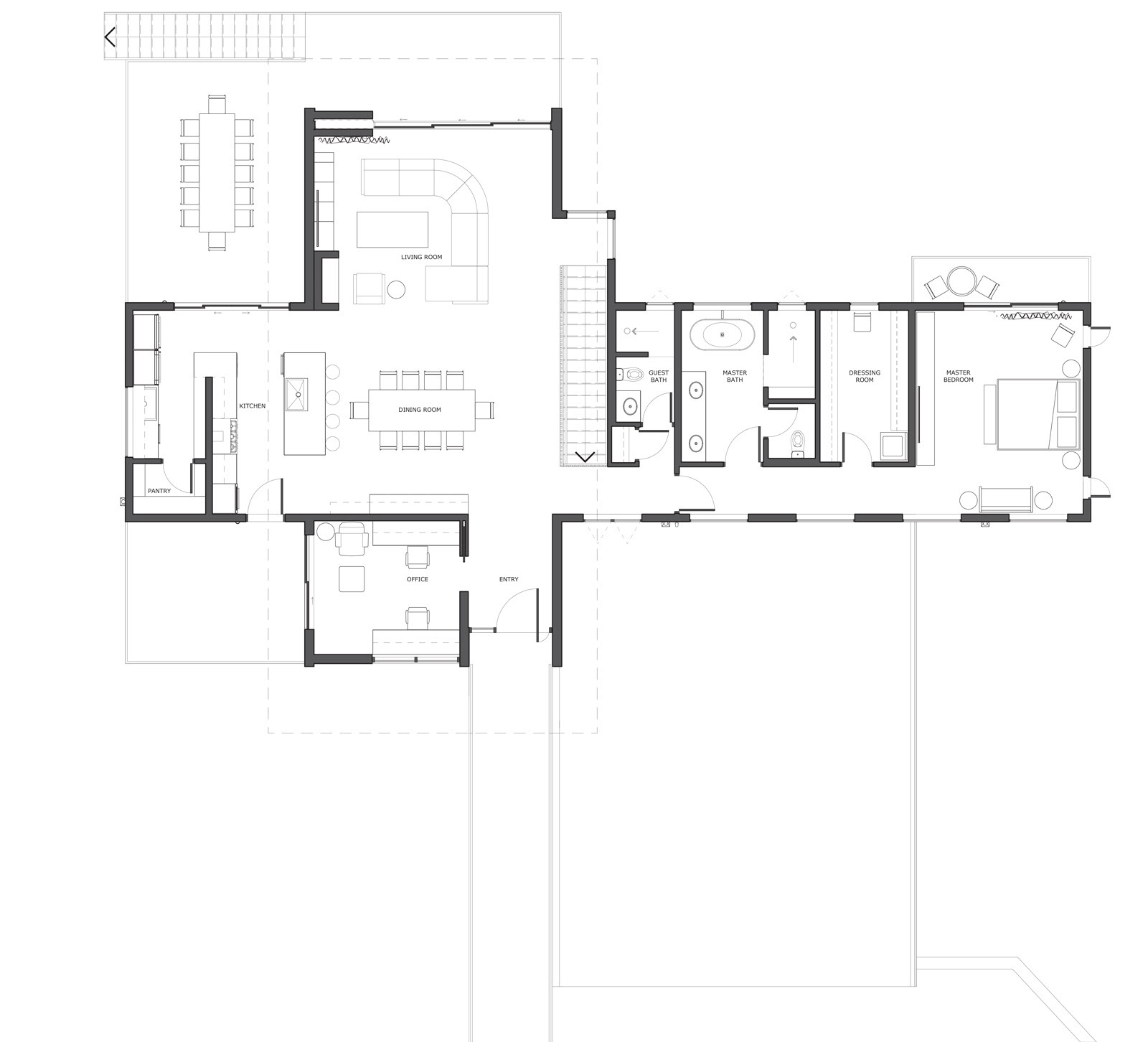
A four bedroom, four bathroom house in Newcastle California overlooking a seasonal creek and the Sierra foothills beyond.
My website is using cookies. I mainly use this for website analytics. Choose accept or decline to proceed. Thank you. Accept Decline